$2,680,000
3,530
SQ FT
$759
SQ/FT
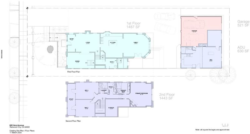
620 Vera Avenue
@ Fulton St - 333 - Central Park Etc., Redwood City
- 4 Bed
- 3 Bath
- 2 Park
- 3,530 sqft
- REDWOOD CITY
-
Beautiful 4-bed, 3-bath two story home in a desirable Redwood City location near Red Morton Park and vibrant downtown. Primary 2900 sqft plus a 630 sqft permitted accessory building, totaling 3,530 sqft on a 7,400 sqft lot, plus an additional 349 sqft basement! A welcoming front porch & spacious entry! The interior features a formal living room w/ fireplace, an elegant dining room w/ French doors & pleasant views, and a generous family room that opens seamlessly to backyard. The gourmet kitchen is equipped with wood cabinetry, a large island, a pantry, a breakfast area & high-end appliances including a 6-burner Wolf range with a commercial-style hood. Upstairs, a spacious primary suite has a fireplace, an updated bath, a huge walk-in closet & backyard views. Two additional bedrooms connect to a long office or sitting area lined with walls of windows. A hallway bath & a laundry also conveniently located upstairs. Hardwood floor throughout. A step-down basement with many windows offers space for recreation. The long driveway provides ample parking in addition to a detached 2-car garage. The permitted ADU has 1 bed, 1 bath, vaulted ceiling & kitchen, ideal for rental income, guests, or extended family. A rare opportunity to own a luxury property in the heart of Silicon Valley.
- Days on Market
- 9 days
- Current Status
- Active
- Original Price
- $2,680,000
- List Price
- $2,680,000
- On Market Date
- Apr 7, 2026
- Property Type
- Single Family Home
- Area
- 333 - Central Park Etc.
- Zip Code
- 94061
- MLS ID
- ML82042005
- APN
- 053-022-180
- Year Built
- 1932
- Stories in Building
- 2
- Possession
- Unavailable
- Data Source
- MLSL
- Origin MLS System
- MLSListings, Inc.
West Bay Christian Academy
Private K-8 Religious, Coed
Students: 102 Distance: 0.2mi
Hawes Elementary School
Public K-5 Elementary, Yr Round
Students: 312 Distance: 0.2mi
Redeemer Lutheran School
Private K-8 Elementary, Religious, Coed
Students: 208 Distance: 0.3mi
North Star Academy
Public 3-8 Elementary
Students: 533 Distance: 0.4mi
Mckinley Institute Of Technology
Public 6-8 Middle, Yr Round
Students: 384 Distance: 0.4mi
John Gill Elementary School
Public K-5 Elementary, Yr Round
Students: 275 Distance: 0.5mi
- Bed
- 4
- Bath
- 3
- Double Sinks, Primary - Stall Shower(s), Stall Shower, Tile, Tub with Jets, Updated Bath
- Parking
- 2
- Detached Garage, Off-Street Parking, Parking Area
- SQ FT
- 3,530
- SQ FT Source
- Unavailable
- Lot SQ FT
- 7,400.0
- Lot Acres
- 0.169881 Acres
- Kitchen
- Cooktop - Gas, Dishwasher, Garbage Disposal, Hood Over Range, Island, Island with Sink, Microwave, Oven - Gas, Pantry, Refrigerator
- Cooling
- Central AC
- Dining Room
- Breakfast Bar, Breakfast Nook, Formal Dining Room
- Disclosures
- Natural Hazard Disclosure
- Family Room
- Separate Family Room
- Flooring
- Tile, Wood
- Foundation
- Crawl Space
- Fire Place
- Living Room, Primary Bedroom
- Heating
- Central Forced Air, Fireplace, Heating - 2+ Zones
- Laundry
- In Utility Room, Inside, Washer / Dryer
- Fee
- Unavailable
MLS and other Information regarding properties for sale as shown in Theo have been obtained from various sources such as sellers, public records, agents and other third parties. This information may relate to the condition of the property, permitted or unpermitted uses, zoning, square footage, lot size/acreage or other matters affecting value or desirability. Unless otherwise indicated in writing, neither brokers, agents nor Theo have verified, or will verify, such information. If any such information is important to buyer in determining whether to buy, the price to pay or intended use of the property, buyer is urged to conduct their own investigation with qualified professionals, satisfy themselves with respect to that information, and to rely solely on the results of that investigation.
School data provided by GreatSchools. School service boundaries are intended to be used as reference only. To verify enrollment eligibility for a property, contact the school directly.


















































































































