$919,500
2,700
SQ FT
$341
SQ/FT
2230 Ventana Court
@ Panorama - 182 - Hollister, Hollister
- 4 Bed
- 3 Bath
- 3 Park
- 2,700 sqft
- HOLLISTER
-
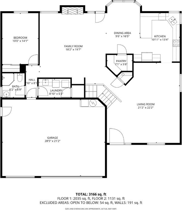
GORGEOUS & spacious Cerra Vista Estates BEAUTY! This 4 bed/3 full bath 2,700 sf HOME on a 9,815 sf lot is ready for the WHOLE FAMILY or your WORK AT HOME needs w/ a full Bed/Bath downstairs. Soaring ceilings w/ expansive rooms & TONS of natural light, make this 3 CAR GARAGE Delightful. ORIGINAL OWNER has maintained this home immaculately since purchasing direct from Anderson Homes in 2000. UPGRADES GALORE throughout the entire property with a lot of attention to detail. Central HEAT & A/C w/ a FIREPLACE in the Family Room. Enter into a formal Living Room w/high ceilings. Enjoy a dedicated Dining Area for larger groups or sit at the Kitchen Island or the smaller eating area between the Kitchen/Family Room for a more intimate/easy experience. The roomy & well laid-out Kitchen boasts a large Pantry, gas stovetop and GRANITE countertops. Primary bedroom & bathroom are a full RETREAT! This home FEELS like a place you can stay FOREVER - move right in & start Living it Up! HUGE laundry room downstairs w/a sink & extra cabinets - big closet at the far end of the laundry room for extra storage. The backyard is an OASIS with lawn, hardscape, concrete, full landscaping & a good-sized shed on a pad. Cul-de-Sac living for less traffic. Extra wide driveway. Easy commute access but tucked away.
- Days on Market
- 4 days
- Current Status
- Active
- Original Price
- $919,500
- List Price
- $919,500
- On Market Date
- Oct 22, 2025
- Property Type
- Single Family Home
- Area
- 182 - Hollister
- Zip Code
- 95023
- MLS ID
- ML82025611
- APN
- 057-640-013-000
- Year Built
- 2000
- Stories in Building
- Unavailable
- Possession
- Unavailable
- Data Source
- MLSL
- Origin MLS System
- MLSListings, Inc.
Cerra Vista Elementary School
Public K-5 Elementary
Students: 631 Distance: 0.1mi
Calvary Christian
Private K-12 Combined Elementary And Secondary, Religious, Coed
Students: 37 Distance: 0.3mi
Sunnyslope Elementary School
Public K-5 Elementary
Students: 572 Distance: 1.0mi
Pinnacles Community School
Public 8-12
Students: 13 Distance: 1.0mi
Ladd Lane Elementary School
Public K-5 Elementary
Students: 659 Distance: 1.0mi
Southside Elementary School
Public K-8 Elementary
Students: 213 Distance: 1.5mi
- Bed
- 4
- Bath
- 3
- Double Sinks, Full on Ground Floor, Marble, Primary - Oversized Tub, Primary - Stall Shower(s), Shower and Tub, Stall Shower, Updated Bath
- Parking
- 3
- Attached Garage, On Street
- SQ FT
- 2,700
- SQ FT Source
- Unavailable
- Lot SQ FT
- 9,815.0
- Lot Acres
- 0.225321 Acres
- Kitchen
- Cooktop - Gas, Countertop - Granite, Dishwasher, Exhaust Fan, Garbage Disposal, Hood Over Range, Hookups - Ice Maker, Island, Microwave, Oven - Built-In, Pantry
- Cooling
- Ceiling Fan, Central AC
- Dining Room
- Dining Area, Dining Area in Family Room, Dining Bar
- Disclosures
- Natural Hazard Disclosure
- Family Room
- Kitchen / Family Room Combo
- Flooring
- Carpet, Tile, Vinyl / Linoleum
- Foundation
- Concrete Slab
- Fire Place
- Family Room, Gas Log, Gas Starter, Wood Burning
- Heating
- Central Forced Air - Gas, Fireplace, Gas
- Laundry
- Electricity Hookup (110V), Inside, Tub / Sink
- Fee
- Unavailable
MLS and other Information regarding properties for sale as shown in Theo have been obtained from various sources such as sellers, public records, agents and other third parties. This information may relate to the condition of the property, permitted or unpermitted uses, zoning, square footage, lot size/acreage or other matters affecting value or desirability. Unless otherwise indicated in writing, neither brokers, agents nor Theo have verified, or will verify, such information. If any such information is important to buyer in determining whether to buy, the price to pay or intended use of the property, buyer is urged to conduct their own investigation with qualified professionals, satisfy themselves with respect to that information, and to rely solely on the results of that investigation.
School data provided by GreatSchools. School service boundaries are intended to be used as reference only. To verify enrollment eligibility for a property, contact the school directly.




















































